Каркасный дом Классик 4

6480000 6700000

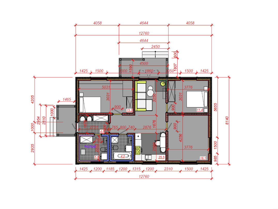
Уютный стильные дом Классик 4 - 103 м2

  • Тёплый

Уютный стильные дом Классик 4 - 103 м2